Проект цеху з виробництва консервів з підвищеним вмістом цукру потужністю 20 тоб/зміну
| dc.contributor.author | Пилипенко, А. В. | |
| dc.contributor.author | Дубова Г. Є. | |
| dc.date.issued | 2025 | |
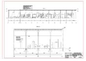
| dc.description.abstract | Метою кваліфікаційної роботи є проект будівництва консервного підприємства потужністю 20 туб за зміну консервів з підвищеним вмістом цукру. Кваліфікаційна робота складається з пояснювальної записки на 72 сторінках, яка містить 40 літературних джерел і 3 додатки та 4 аркушів графічної частини. В розділі «Технологічна частина» обґрунтована необхідність будівництва консервного підприємства, асортимент продукції; наведено розрахунки витрат сировини, розрахунки площ, підбір обладнання. Розділ «Проектно-будівельні рішення» містить опис генерального плану перелік приміщень та їх площі. В розділі «Управління якістю харчових продуктів з основами НАССР» описані контрольно-критичні точки виробництва консервів та заходи по підвищенню якості продукції. На графічних листах представлені: генплан (арк.1); план цеху на позначці 0,000 (арк.2); поздовжні та поперечні розрізи 1-1, 2-2 (арк.3), апаратурно-технологічна схема виробництва вишневого варення (арк.4). | |
| dc.identifier.citation | Пилипенко А. Проект цеху з виробництва консервів з підвищеним вмістом цукру потужністю 20 тоб/зміну. Кваліф. робота. ПДАУ, 2025. 72 с. | |
| dc.identifier.uri | https://dspace.pdau.edu.ua/handle/123456789/19418 | |
| dc.language.iso | uk | |
| dc.title | Проект цеху з виробництва консервів з підвищеним вмістом цукру потужністю 20 тоб/зміну | |
| dc.type | Other |
Файли
Контейнер файлів
1 - 5 з 5
Вантажиться...
- Назва:
- Пилипенко а план-Model.pdf
- Розмір:
- 466.35 KB
- Формат:
- Adobe Portable Document Format
Вантажиться...
- Назва:
- Пилипенко А. розріз -Model.pdf
- Розмір:
- 593.74 KB
- Формат:
- Adobe Portable Document Format
Вантажиться...
- Назва:
- Апаратурка Пилипенко А.-Model.pdf
- Розмір:
- 758.79 KB
- Формат:
- Adobe Portable Document Format
Вантажиться...
- Назва:
- Пилипенко генплан-Model_compressed.pdf
- Розмір:
- 813.09 KB
- Формат:
- Adobe Portable Document Format
Ескіз недоступний
- Назва:
- Дипломна_Анна_Пилипенко_15_06_25_літ_Freeze.pdf
- Розмір:
- 9.45 MB
- Формат:
- Adobe Portable Document Format
Ліцензійна угода
1 - 1 з 1
Ескіз недоступний
- Назва:
- license.txt
- Розмір:
- 17.09 KB
- Формат:
- Item-specific license agreed upon to submission
- Опис: